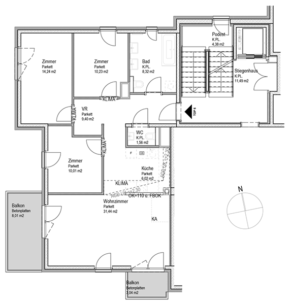
• Grundriß

    Grundriß als PDF  (3.5 MB)

    Handbuch als PDF (11 MB)

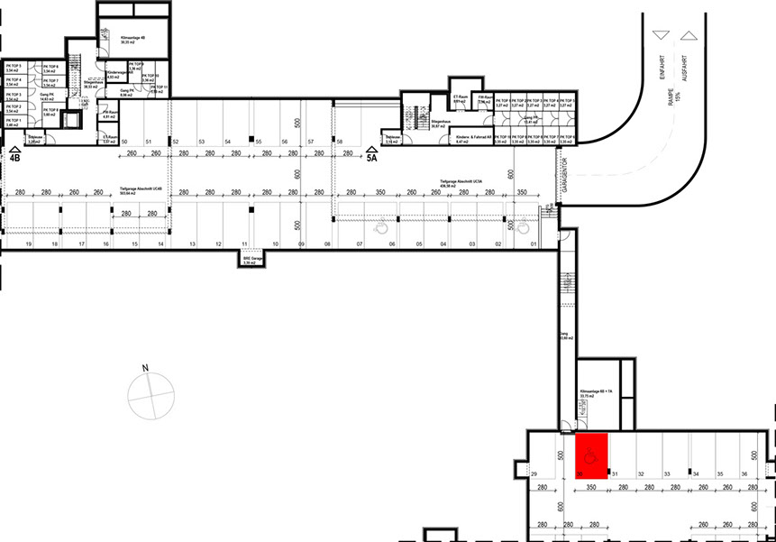
  • Garagenplan

Grundriß / Downloads

Fotos

Video

Mietbedingungen

Mietkosten

Anfrage