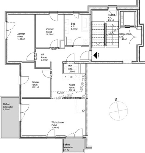
Hartäckerstraße 29 / Top 4

4 Rooms - 91 m2

hired out