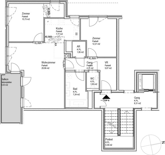
3 Rooms - 86 m
2
hired out
Floor Plan / Downloads
Photo
Video
Rental Terms
Rental Costs
Request