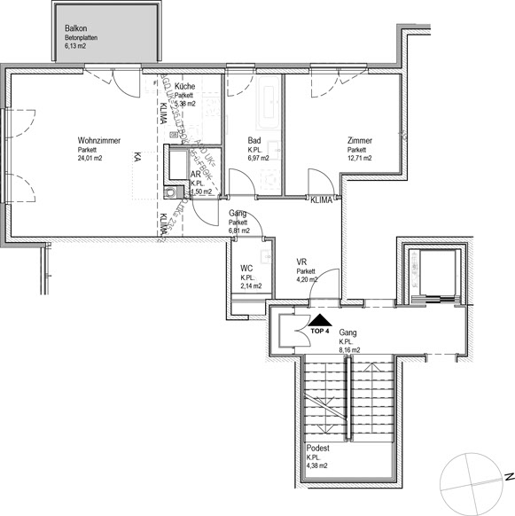
2 Rooms - 64 m
2
Floor Plan / Downloads
Photo
Video
Rental Terms
Rental Costs
Request