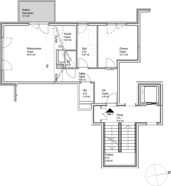
Weimarerstrasse-124 / Top-7